Objekt 2 von 2
Vorheriges Objekt
Zurück zur Übersicht

code
Zurück zur Übersicht
Vorheriges Objekt
Zurück zur ÜbersichtErfurt: gemütliche 2 Raum Wohnung im Dachgeschoß
Objekt-Nr.: 1652DGR-2025
Schnellkontakt
Optionen
Optionen
Basisinformationen
Adresse:
Milchinselstraße 4
99094 Erfurt
Thüringen
99094 Erfurt
Thüringen
Stadtteil:
Brühlervorstadt/Steigerstrasse
Gebiet:
Stadtrand
mtl. Kaltmiete:
550 €
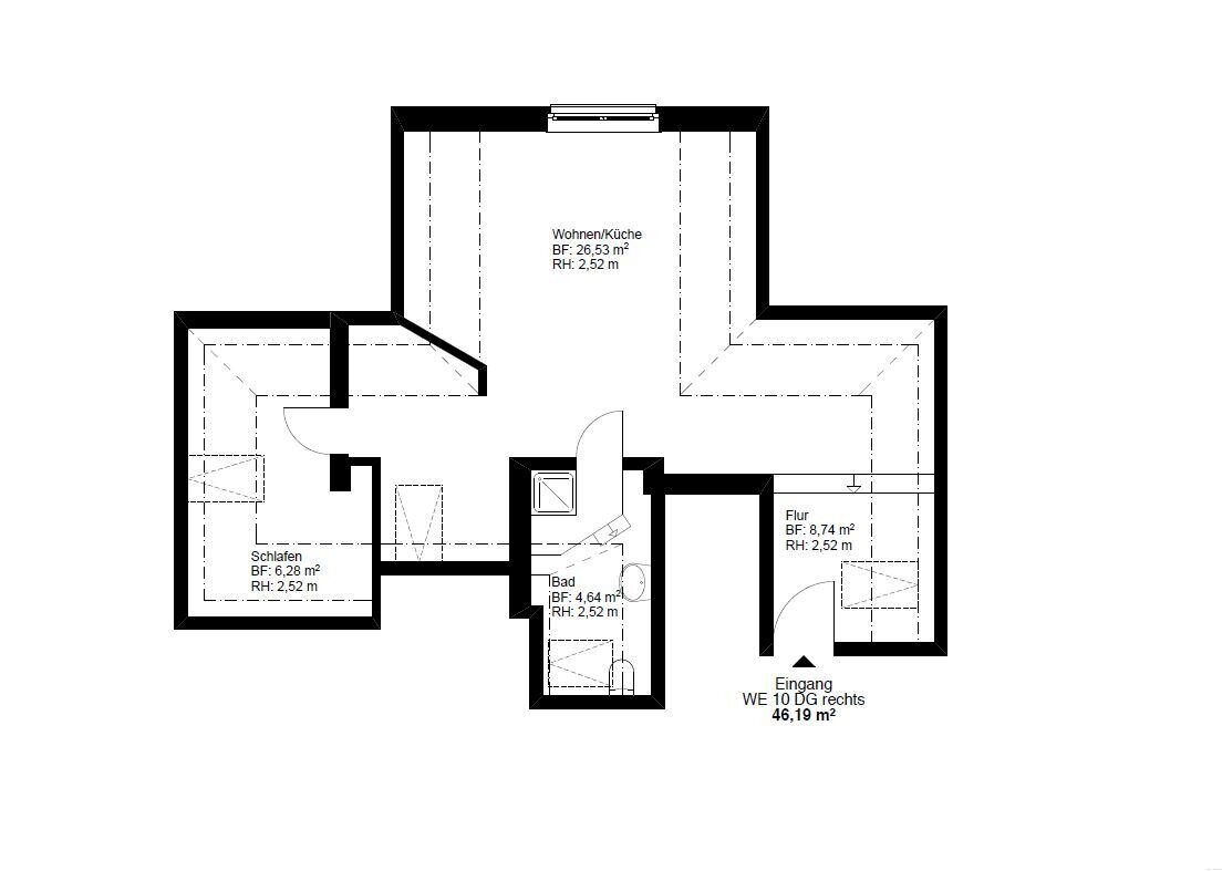
Wohnfläche ca.:
46,19 m²
Zimmeranzahl:
2
Weitere Informationen
Weitere Informationen
Wohnungstyp:
Dachgeschoss
Etage:
5
Etagenanzahl:
5
Warmmiete inkl. NK:
690 €
Nebenkosten:
140 €
Kaution / Genossenschaftsanteile:
3 Kaltmieten Kaution = 1.440 Euro
Heizkosten:
sind in den Nebenkosten enthalten
Provisionspflichtig:
nein
Küche:
offen
Bad:
Dusche, Fenster
Anzahl Schlafzimmer:
1
Anzahl Badezimmer:
1
Raucher:
nur an Nichtraucher
Umgebung:
ruhige Gegend, Wald
Haustiere:
nicht gestattet
Qualität der Ausstattung:
normal
Baujahr:
1909
Bezugsfrei ab:
15.10.2025
Bodenbelag:
Laminat
Zustand:
nach Vereinbarung
Heizung:
Zentralheizung
Befeuerungsart:
Gas
Energieausweistyp:
Verbrauchsausweis - gültig vom 28.06.2020 bis 12.02.2029
Energieeffizienz-Klasse:
D
Energieverbrauchs-Kennwert:
110 kWh/(m²*a)
Energieverb. Warmwasser enthalten:
ja
Baujahr laut Energieausweis:
1995
Energieklasse:
D
Kaution / Genossenschaftsanteile:
3 Kaltmieten Kaution = 1.440 Euro
Beschreibung
Beschreibung
Objektbeschreibung:
nahe Steiger, Espachpark, Luisenpark + ega
Das Gelände zwischen der heutigen Milchinselstraße, der Nerly- und der Hochheimer Straße lag einst weit vor den Toren der Stadt. Im 17. Jahrhundert legten sich begüterte Bürger in der wasserreichen Vorstadt Gärten zu ihrer Erholung an. Eine Besonderheit in Hadelichs Garten war ein vom Dreibrunnenwasser gebildeter Teich mit einer von Pappeln bewachsenen Insel.
Das Gelände zwischen der heutigen Milchinselstraße, der Nerly- und der Hochheimer Straße lag einst weit vor den Toren der Stadt. Im 17. Jahrhundert legten sich begüterte Bürger in der wasserreichen Vorstadt Gärten zu ihrer Erholung an. Eine Besonderheit in Hadelichs Garten war ein vom Dreibrunnenwasser gebildeter Teich mit einer von Pappeln bewachsenen Insel.
Ausstattung:
Dachgeschoss
2 Zimmer mit Designboden
Bad mit Dusche
Küche offen im Wohnraum
kleines Schlafzimmer(chen)
Ruhige Lage und Straßenbahn ganz nah
Angenehme Hausgemeinschaft
2 Zimmer mit Designboden
Bad mit Dusche
Küche offen im Wohnraum
kleines Schlafzimmer(chen)
Ruhige Lage und Straßenbahn ganz nah
Angenehme Hausgemeinschaft
Lage:
Gemütliche 2-Raum-Wohnung in sehr umgänglicher, familienfreundlicher Hausgemeinschaft.
Das Wohnhaus befindet sich in sehr ruhiger und angenehmer
Wohnlage der Brühlervorstadt in Erfurt Süd/West. Die
unmittelbare Umgebung zum Steigerwald, Kressepark und
Dreibrunnenbad sowie eine sehr gute Verkehrsanbindung steigern die Attraktivität.
Das Wohnhaus befindet sich in sehr ruhiger und angenehmer
Wohnlage der Brühlervorstadt in Erfurt Süd/West. Die
unmittelbare Umgebung zum Steigerwald, Kressepark und
Dreibrunnenbad sowie eine sehr gute Verkehrsanbindung steigern die Attraktivität.
Sonstiges:
ACHTUNG: Telefonische Anfragen können zurzeit nicht bearbeitet werden, wir bitten Sie deshalb von Anrufen abzusehen.
Für ihre Anfragen zur Wohnung nutzen Sie bitte das jeweilige Kontaktformular. Bitte senden Sie uns Ihre Adress- und Kontaktdaten möglichst vollständig zu.
Wir melden uns baldmöglich bei Ihnen zurück!
Vielen Dank für Ihr Entgegenkommen.
Für ihre Anfragen zur Wohnung nutzen Sie bitte das jeweilige Kontaktformular. Bitte senden Sie uns Ihre Adress- und Kontaktdaten möglichst vollständig zu.
Wir melden uns baldmöglich bei Ihnen zurück!
Vielen Dank für Ihr Entgegenkommen.
Anmerkung:
Die von uns gemachten Informationen beruhen auf Angaben des Vermieters. Für die Richtigkeit und Vollständigkeit der Angaben kann keine Gewähr bzw. Haftung übernommen werden. Eine Zwischenvermietung und Irrtümer sind vorbehalten.
Ihr Ansprechpartner

Sander KG, Gewerbe- & Privat- Immobilien, Inh.: Stephan Sander e.K.
Herr Ralph Sander
Schmidtstedter Straße 29
99084 Erfurt
Büro: +49 361 6431973
Herr Ralph Sander
Schmidtstedter Straße 29
99084 Erfurt
Büro: +49 361 6431973
Zurück zur Übersicht





